
【WhatsApp】

【WeChat】
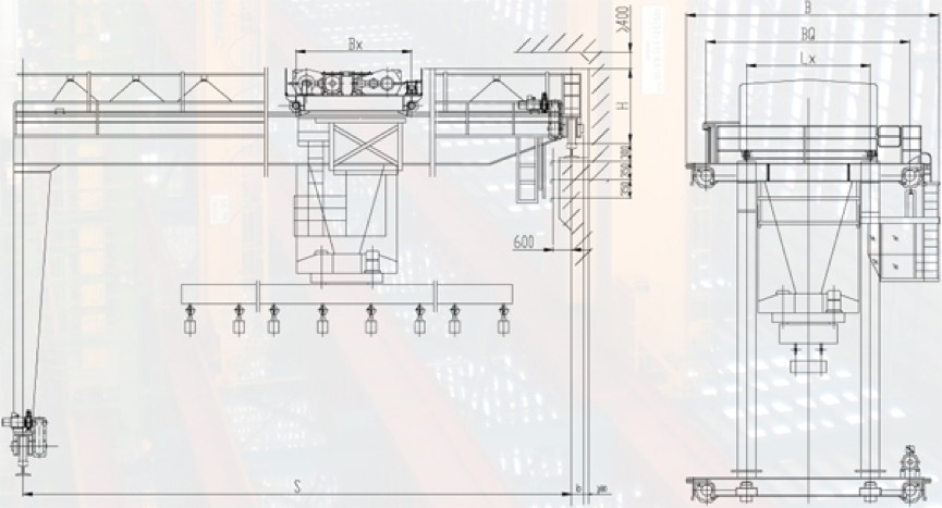
PRODUCT DESCRIPTION
The BMH semi-gantry crane is a rail-operated small to medium-sized crane designed for use with electric hoists such as the CD1 and MD1 models. It is typically operated from the ground or remotely. A dedicated reducer for the lower crossbeam provides greater working space inside the crane.
Parameters
1. Lifting capacity: 2, 3, 5, or 10 tons (customizable)
2. Span: 10m-20m (customizable)
3. Lifting height: Customizable
4. Protection rating: IP54
5. Operating temperature: -25°C to 40°C
Applications
This crane is a general-purpose crane, primarily used for loading and unloading in open spaces and warehouses.
Structural Advantages

Services
1. Pre-sales Service
Understand customer needs and help customers select the right products.
Provide technical support before equipment installation.
Provide in-factory training for equipment operation, repair, and maintenance personnel.
2. Post-sales Service
According to contract requirements, track, produce, and ship equipment to ensure it arrives safely and intact at the customer's designated location.
Provide all necessary technical parameters for pre-installation.
3. After-sales Service
Install, commission, and repair equipment according to the contract or customer's agreed-upon schedule.
Provide on-site training based on customer needs.
Handle customer complaints regarding product and service quality and promptly arrive on-site to resolve issues.
Establish equipment user profiles, archive and maintain records of each device's installation, commissioning, and repair. Ensure traceability of service for each customer's product and provide technical support for the maintenance of each device.
Conduct regular customer follow-up visits to collect customer feedback and suggestions on products and services and promptly address them.
Each service station is centrally coordinated by the after-sales service station to ensure the timeliness and effectiveness of the service.
ONLINE CONSULTATION
RELATED SUGGESTION
Leave A Message
If you are interested in our products and want to know more details, please leave a message here, we will reply you as soon as we can.